房天下>南宁二手房>良庆二手房>大沙田片区二手房>金象三区二手房

金象三区 土地300㎡ 整栋出售 证件齐全 占天占地

分享

微信扫一扫分享好友
更多分享>

收藏

下载房天下APP
楼盘动态及时知

基本信息
建筑年代2005年
有无电梯
产权性质 商品房
挂牌时间 2025-09-11
梯户比例 暂无数据
供暖方式 暂无数据
房屋结构 平层
抵押信息 暂无数据
楼层高度 暂无数据
上次交易 暂无数据
房源动态
  • -
    房源浏览(人)
  • -
    房源带看(次)
  • -
    关注房源(人)
  • 当前房源报价为:350.00万
    2026-02-02

微信扫码查看更多

房源描述
  • 核心卖点
    1、看房方便
    2、小区绿化好、很安静居住很舒服、停车宽裕、出行方便
    3、房子采光好、南北通透、房间都很敞亮、户型方正不浪费
    4、周边有大型市、和菜市,买菜和买生活用品很齐全
    5、交通方便、一号线多路公交到达南宁各个地方
    6、纯手工拍照、图片很真实、好房子不等人、请尽快联系我看房
    7、如果这套不合适,我这里还有很多房源
  • 业主心态
    业主很信任我,我能了解业主卖房新的动态。目前市场交易量平稳,政策已经基本稳定,是市场触底入手的好时候。请不要错过性价比高的好房。
  • 小区配套
  • 服务介绍
    本人做房产多年,本着专业的房产知识,为您服务,我会在短的时间内帮您买好满意的房子,不让您错失任何好房子,更不让您每天为买房的事烦心,欢迎随时联系!
房源图片
室内图
室内图
室内图
室内图
室内图
室内图
室内图
室内图
室内图
室内图
室内图
室内图
室内图
室内图
室内图
室内图
室内图
室内图
室内图
室内图
室内图
室内图
室内图
室内图
室内图
室内图
室内图
室内图
室内图
室内图
室内图
室内图
小区相关图
小区相关图
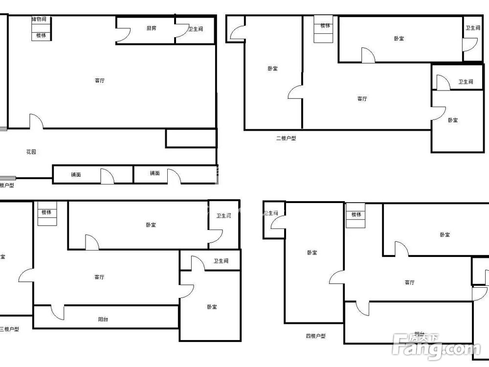
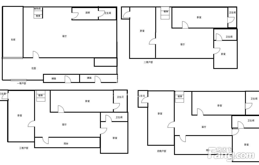
户型图
户型图
350
满五满五
3室2厅2卫
户型
432.67平米
建筑面积
8089元/平米
单价
朝向
底层
楼层(共4层)
精装修
装修
小      区
金象三区(距2号线石子塘站约484米)
区      域
广西江山房地产代理有限公司

营业执照

闪电回复
金象三区小区信息
参考均价3843元/平米
同比去年↓15.93%
环比上月↓0.65%
收藏
物业类型 住宅
物业费用0.50元/㎡·月
建筑类型板塔结合
产权年限70年产权;
建筑年代2012年
绿 化 率30%
容 积 率1.2
人车分流
总楼栋数10
总 户 数26
小区图片
周边配套
免责声明:房源信息由网站用户提供,其真实性、合法性由信息提供者负责,最终以政府部门登记备案为准。本网站不声明或保证内容之正确性和可靠性,购买该房屋时,请谨慎核查。入学情况仅凭历史经验总结,在此不承诺升学事宜。请您在签订合同之前,切勿支付任何形式的费用,以免上当受骗。